Home search
Codice
Tipologia
Uso
Categoria
Città
Zona
Descrizione
Prezzo
Mq
Ordine
CERCA
<< Torna indietro
Arcola- Appartamento in bifamiliare con ingresso indipendente e giardino privato
Appartamento
Proponiamo in vendita appartamento in bifamiliare con ingresso indipendente, ideale per chi desidera privacy, spazi esterni e comfort abitativo.

L’immobile è circondato da un ampio giardino privato, perfetto per momenti di relax all’aperto, pranzi e cene in compagnia. Il giardino ospita una piscina fuori terra, rendendo lo spazio esterno particolarmente fruibile durante la bella stagione.

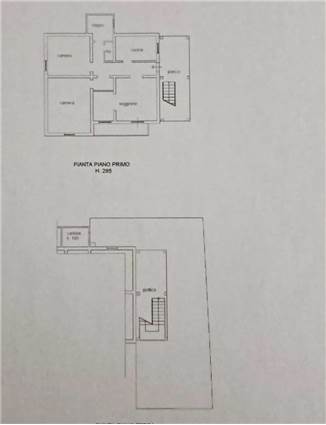
L’accesso all’abitazione avviene tramite scala esterna coperta, che conduce all’appartamento posto al primo piano. Al piano terra sono presenti un portico e una cantina, comodi come spazi accessori, deposito o area di servizio.

Internamente l’appartamento è composto da:

ingresso

soggiorno con sala da pranzo, ampio e luminoso

cucina abitabile separata

due camere da letto matrimoniali

ripostiglio

bagno

La distribuzione degli ambienti risulta funzionale e adatta sia a nuclei familiari sia a chi cerca una soluzione indipendente con spazi ben definiti.
Prezzo
270.000,00 EUR
Mq
133
Classe Energetica
F (136)
Locali
4
Camere
2
Bagni
1
Posti auto
2
Mq giardino
500
Stato Immobile
Buono
Grado
Medio
Giardino
Privato
Tipo Soggiorno
Soggiorno
Tipo Cucina
Abitabile
Riscaldamento
Autonomo
Accessori
Camino, Piscina
info@gs-immobiliare.it +39 0187 975113
Cookie preference